(仮称)島松地区複合施設について

施設の概要
(1)施設規模
【構造】鉄骨造 地上2階
【延床面積】1階 984.32m2 2階 1005.81m2 合計 1990.13m2
【駐車場】4台
【駐輪場】286台
(2)主な導入機能
島松支所、島松市民センター、子育て支援センター、子どもひろば、図書館島松分館
(3)複合施設建設の基本的な考え方
1.複合施設整備にあたっての整備方針
基本コンセプト 島松地区の新たな賑わい交流拠点
整備方針 1)交流の拠点
2)生活子育て支援の拠点
3)魅力創出の拠点
2.基本理念
本計画の基本コンセプトである「島松地区の新たな賑わい交流拠点」の実現に向け、いろいろな
つながりができ、たくさんの人が集まるみんなの居場所を目指します。
3.施設整備の基本的な考え方
1)つなぐ&むすぶ
世代間を問わず、すべての市民の集いの場・憩いの場となり自然と人が集まる心地の良い空間
2)地域の「居場所」
地域の人々が日常的に施設を利用でき、気軽に寄り道したくなるような地域の居場所
3)新鮮&新しい
JR島松駅周辺から島松地区全体まで、まちに活性化と賑わいを呼び起こす新たなまちの拠点
1階 図書交流スペース
1階 階段下
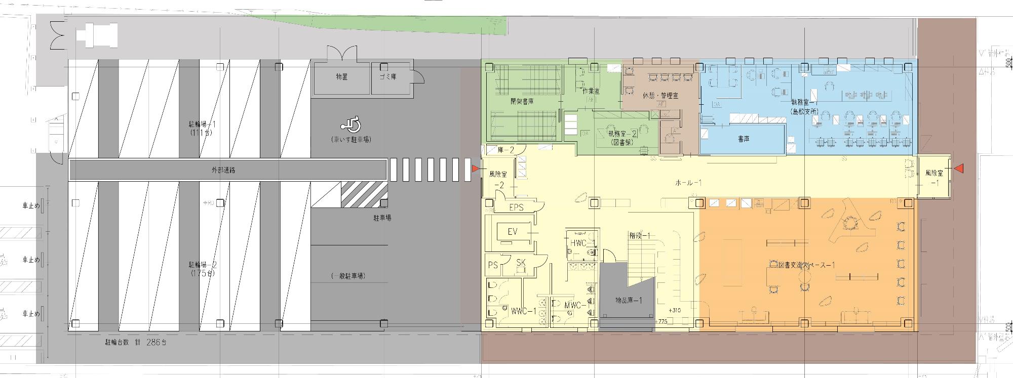
1階平面図
2階 屋内運動スペース
2階 図書交流スペース
2階平面図 (注)パース図、平面図は完成時のイメージです。
事業スケジュール

企画振興部 まちづくり拠点整備室 まちづくり推進課
電話 :0123-33-3131(内線:2334)
ファックス :0123-33-3137
お問い合わせはこちら
- みなさまのご意見をお聞かせください
-












更新日:2025年11月30日